94 000 USD $
Нежилое помещение в ЖК Ревуцкий, ст. м. Харьковская. Хозяин.
- 18/02/2021 11:37
- Украина, Киев и область
- Коммерческая недвижимость
- Частные объявления - продам, предлагаю
Продажа нежилых помещений:
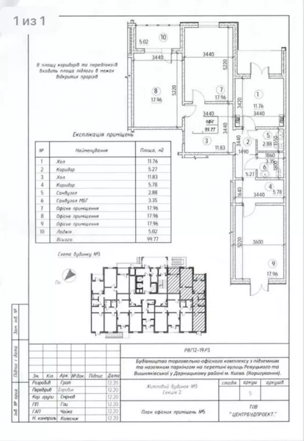
- ЖК "Ревуцкий" в Дарницком р-не.
- ст. м. Харьковская - 10мин.пешком.
- Дом 3.
- Ввод в эксплуатацию 3 квартал 2021 года.
Два помещения расположены на 1 этаже.
- Метраж каждого по 99, 77 кв.м.
- В каждом помещении по два отдельных входа.
- Стоимость по 145000 долл. США.
Помещение - 73, 12 кв.м., отдельный вход, в доме 1, ввод в эксплуатацию 2 квартал 2021 г., стоимость 94000 у.е.
Переуступка.
Дополнительных расходов нет.
Без комиссии.
Владелец.
Тел.: +38 (098) 692-17-30. Ольга.
ID: 326553
Создано: 18/02/2021













