Продаж барнхаусу з мансардою в с. Іванковичі, 239м2 приємна ціна
- 18/08/2023 12:43
- Украина, Киев и область
- Продажа дома
- Частные объявления - продам, предлагаю
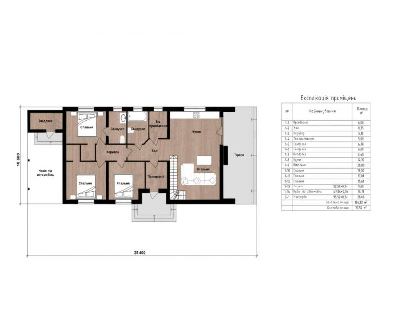
Продаж затишного Барнхаусу з площею 239 кв.м в стилі Hi-tec в мальовничому селі Іванковичі
Площа:239 м2
Ділянка:9 соток
Розташування: с.Іванковичі
Планування: на першому поверсі розташовані 3 спальні, два санвузли, простора кухня вітальня з виходом на терасу та технічне приміщення. Другий поверх повністю мансардний.
В будинку:
монолітний фундамент
стіни газоблок aeroc
утеплений мінеральною ватою
підведені комунікації: вода, електрика, каналізація
вікна rehau 70, з ламінацією, енергозберігаючі з напиленням від сонця Solar
фасад під бетон + клінкерна плитка
якісні вхідні двері з терморозривом
друге світло у вітальні
технічні виходи під два каміни всередині та зовні
Біля будинку:
ділянка – 9 соток
доглянута територія з облагородженою ділянкою, є озеленення
зроблено вимощення навколо будинку
ворота та сучасна вхідна група
перед будинком декоративні рослини
ділянка з автополивом + посівний газон
навіс для авто з господарським блоком
парковка на 3 авто
Комунікації:
електрика 16 кВт 3 фази
підведення для освітлення 3*1, 5
септик 10 куб.м.
Котедж розташований так, що в районі 3-5 км є все необхідне – аптеки, супермаркети, банківські відділення, пошта, парк, озеро, ліс, садочки, школи, клініки та салони краси.
До станції найближчого метро 20-25 хвилин на авто
Дополнительная информация на сайте best-dom.com.ua/catalog/proektyi-domov-100-150-m2/tipovyie-proektyi/proekt-t-hitech-ivankiv_bornhouse.html


















