Таунхаус «Borispol Village» от владельца
- 24/03/2021 22:35
- Украина, Киев и область
- Продажа дома
- Частные объявления - продам, предлагаю
Продаётся таунхаус от владельца в «Borispol Village»
Киевская область, г. Борисполь, ул. Полевая 1/1
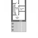
Таунхауз состоит из 3 этажей.
На цокольном расположены гараж и хозяйственные помещения, на первом – кухня и гостинная, а на втором – 3 спальни.
Простая и функциональная планировка позволит использовать каждый из 149 кв.м. площади с максимальной эффективностью.
Так же для дома предусмотрен задний двор.
Окна дома выходят на тихий частный сектор.
Территория ЖК 2, 67 га.
На территории есть футбольное поле, детская площадка и много места для прогулок.
Стены из кирпича с утеплением и с лицевым кирпичом.
Перегородки кирпич, пеноблок.
Установлены металлопластиковые окна со стеклопакетами.
Установлены обогревательные элементы по всему дому (батареи, газовый котёл).
Установлен счётчик газа, электричества, холодной и горячей воды.
Стяжка полов.
Штукатурка стен во всех комнатах, кроме санузлов.
В дом заведен газ, вода, электричество.
По всему дому разведены электрокоммуникации, вода
Установлены ворота в гараж.
Установлена запорная арматура на отводах стояков.
Тел.: (067) 239-13-14, (093) 703-16-33. Евгений.
















