Дизайн-проект . Комплексный ремонт.
- 03/05/2018 15:54
- Украина, Киев и область
- Проектирование и дизайн
- Частные объявления - продам, предлагаю
Технический дизайн , проектирование, ремонт квартир, салонов красоты, ресторанов.
Выполним техническое, эстетическое проектирование ( дизайн)вашего помещения по его функционалу.
Анкета заказчика позволит быстро вывести ТЗ.
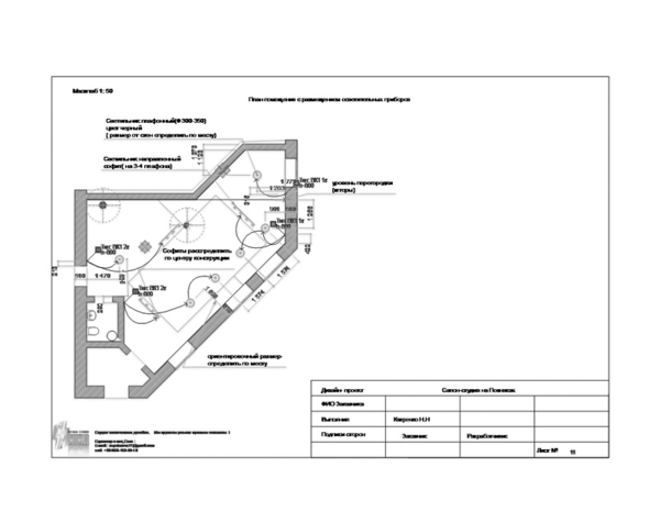
Что входит в проект кратко:
- обмерочный план
-план демонтажа, монтажа
-экспликация помещений, зон
-каталоги объектов и материалов
- развертки, чертежи , раскладки плитки
- визуализации, перечни материалов , ссылки для закупок.
Контроль ремонта сводится к выполнения по чертежам.
С нашим проектом сделать ремонт - это просто.
ID: 232273
Создано: 17/03/2018










